- 売買物件
 - Sale
 
売家♪奄美大島 浦上町✨エレベーター付き売家✨2LDK✨国道沿い✨事務所兼住居にも
【 中古 一戸建て 】奄美大島 浦上町✨エレベーター付き売家✨2LDK✨国道沿い✨事務所兼住居にも
| 面積 | 築年月 | 価格 | 
|---|---|---|
土地/207㎡ 62坪 建物/82.15㎡ 24坪  | 1995年12月 | 3,500 万円 | 
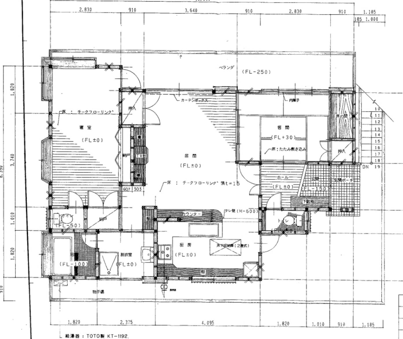
物件写真・間取り
物件概要
| 物件名 | 売家♪奄美大島 浦上町✨エレベーター付き売家✨2LDK✨国道沿い✨事務所兼住居にも  | 
|---|
| 交通機関 | 
|---|
| 価格 | 3,500 万円  | 
|---|
| 土地権利 | 所有権 | 
|---|
| 土地面積 | 207㎡  | 
|---|
| 私道負担面積 | 無し | 
|---|
| 建物面積 | 82.15㎡  | 
|---|
| 建物構造 | 木造 | 
|---|
| 階 / 階数 | 2  | 
|---|
| 築年月 | 1995年12月  | 
|---|
| 都市計画 | 市街化区域 | 
|---|
| 用途地域 | 第二種中高層住居専用地域 | 
|---|
| 建ぺい率 | 60%  | 
|---|
| 容積率 | 200%  | 
|---|
| 駐車場 | 有 | 
|---|
| 接道 | 
  | 
|---|
| 地目 | 宅地 | 
|---|
| 現況 | 空 | 
|---|
| 販売戸数 | 1  | 
|---|
| 引渡し | 相談 | 
|---|
| 設備 | 公営水道、プロパンガス | 
|---|
| 取引態様 | 媒介 | 
|---|
| 物件番号 | URAGAMI | 
|---|
| 情報登録日 | 2025年04月16日 | 
|---|
| 情報更新日 | 2025年04月16日 | 
|---|
































奄美大島 朝日小校区✨浦上町✨エレベーター付き売家✨2LDK✨国道沿い✨事務所兼住居にも
駐車場から直接、エレベーターで2階に行けるので雨の日も安心♪
2階に住居スぺースがあるので日当たりが良く外の目線も気になりませんね(^▽^)/
【価格】3,900万円➡3,500万円 *値下げしました
【所在】鹿児島県奄美市名瀬浦上町
【土地】宅地 207㎡(約62坪)
【建物】木造スレート葺高床式平家建 82.15(約24.8坪)平成7年12月22日新築
【都市計画】区域内
【用途地域】第ニ種中高層住居専用地域
【建蔽率/容積率】60%/200%
ご興味がある方はお問い合わせください!😁